Mały pokój dziecka z słupem konstrukcyjnym - jak zaaranżować?

Galeria zdjęć z Porady projektanta

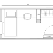
Plan pokoju przesłany przez czytelniczkę.

Plan pokoju przesłany przez czytelniczkę.

Plan pokoju przesłany przez czytelniczkę.
Plan pokoju przesłany przez czytelniczkę.
Plan pokoju przesłany przez czytelniczkę.