Newsletter
Zapisz się do naszej listy mailingowej aby być na bieżąco z nowościami ze świata designu
Wnętrza
Pomieszczenia
Wyposażenie
Style
Inspiracje
Prezentownik 2025: propozycje redakcji na prezenty w stylu modern -Szukasz pomysłu na wyjątkowy, świąteczny prezent? Zobacz nasze...
Prezenty pod choinkę w stylu boho. Prezentownik Czas na Wnętrze 2025 -Pomysły na prezenty, dla tych którzy lubią styl boho. Tu...
Prezentownik 2025: propozycje redakcji na prezenty glamour -Luksusowe przedmioty zamknięte w pełnych przepychu formach budzą...
Niebieski kolor we wnętrzu: meble i dodatki -Roztańczone postacie, swobodna kreska i kolor niebieski w różnych tonacjach nieba nad...
Pasje
Tamara Łempicka - malarka luksusu i skandalu -Tamara Łempicka stworzyła styl, który stał się symbolem epoki art déco i do dziś fascynuje kolekcjonerów na całym...
Mają piękne liście i lubią cień. Te byliny szybko robią efekt w ogrodzie -Zacienione części ogrodu często wyglądają mało atrakcyjnie. Dlatego warto posadzić tam...
Szarpana karkówka w musztardowej marynacie -Majówka ma w polskim kalendarzu miejsce królewskie, swój niepowtarzalny rytm i zestaw rytuałów, za którymi tęsknimy...
Burger z czosnkowo-serową nutą -Wiosna sprawia, że coraz chętniej jemy na tarasie, balkonie lub w plenerze. Warto zatem spakować Sos Czosnkowy Kielecki Food...
Nowy numer
kup ten numer Wydanie papierowe
kup ten numer Wydanie cyfrowe
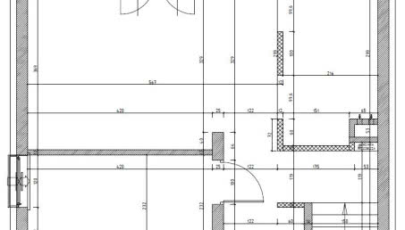
Jak rozmieścić w łazience kosz na bieliznę, wannę, umywalkę, szafkę na kosmetyki i pralkę? Wszystkie rzeczy będą wymieniane na nowe oprócz pralki (42 cm gł.).
Układ pomieszczeń w nowym mieszkaniu spełnia nasze oczekiwania, ale mamy pewne obawy (miejsce na przechowywanie, wielkość kuchni i łazienek) i prosimy o pomoc. Może da się coś jeszcze poprawić....
Proszę o pomoc w rozplanowaniu salonu i kuchni. Myślimy powiększeniu salonu kosztem pokoju obok. Marzy nam się duży stół w części jadalnianej.
Potrzebuję pomocy w zaprojektowaniu umeblowania pokoju dla 2 dziewczynek (6 i 9 lat). Potrzebne są 2 łóżka, 2 biurka, może jakaś szafa i komoda. Ściany marzą mi się biało - żółte. Na suficie...
Proszę o pomoc w aranżacji pokoju pełniącego jednocześnie funkcję jadalni i salonu. Jakie meble i w jakim układzie będą najkorzystniej wyglądały w takim pokoju?
Proszę o pomoc w zaaranżowaniu pokoju dla 2 - letniego chłopca.
Proszę o pomoc w zaaranżowaniu aneksu kuchennego w salonie. Musi się on zmieścić przy ścianie o dł. 3,25 m. Zależy mi na tym, żeby znalazł się tam zlew jednokomorowy, zmywarka, płyta gazowa plus...
Jak podzielić mieszkanie, aby dwie córki 8 i 12 lat miały swoje miejsce, a my sypialnię i pokój dzienny?
Proszę o wskazówkę, gdzie umiejscowić sypialnie? Chciałabym łóżko min. 160 x 200 cm.
Planujemy urządzić kącik dla dziecka. Pojawił się jednak problem, ponieważ w pokoju znajduje się tylko jedno okno, więc wybudowanie ścianki działowej jest niemożliwe. Proszę o podpowiedź jakiegoś...
Proszę o pomoc w zaaranżowaniu salonu. Kominek mogę ewentualnie przemalować, a podłogę wymienić. Chciałabym, aby salon był maksymalnie wygodny i funkcjonalny, ale również ładny. Myślałam o...
Niedługo przeprowadzamy się do wymarzonego mieszkania. Chcemy urządzić w nim funkcjonalną strefę dzienną: salon z aneksem kuchennym. Niestety nie potrafię ustawić mebli tak, żeby do wszystkiego był...
Planujemy remont kuchni (2,8 x 2,05 m). Mąż mówi, że nie mogę ruszyć kuchenki oraz kranu / zlewu i przez to nie mogę wymyślić nic sensownego (pralka też musi tu zostać). Proszę o poradę, jak ustawić...
...
24
x
ABC Budowania
Budowa krok po kroku
Dom Energooszczędny Vademecum
Dom Polski
Jak zbudować dom tańszy niż mieszkanie
Budujemy Dom
Czasopismo budowlane dla budujących dom i wykonawców
Nowoczesne Instalacje
Czas na Wnętrze
Magazyn wnętrzarski pełen inspiracji
Twój Dom Twój Styl
Porady i inspiracje w najmodniejszych stylach
Nowoczesne, stylowe, piękne wnętrza - zasady, porady, inspiracje