Newsletter
Zapisz się do naszej listy mailingowej aby być na bieżąco z nowościami ze świata designu
Wnętrza
Pomieszczenia
Wyposażenie
Style
Inspiracje
Prezentownik 2025: propozycje redakcji na prezenty w stylu modern -Szukasz pomysłu na wyjątkowy, świąteczny prezent? Zobacz nasze...
Prezenty pod choinkę w stylu boho. Prezentownik Czas na Wnętrze 2025 -Pomysły na prezenty, dla tych którzy lubią styl boho. Tu...
Prezentownik 2025: propozycje redakcji na prezenty glamour -Luksusowe przedmioty zamknięte w pełnych przepychu formach budzą...
Niebieski kolor we wnętrzu: meble i dodatki -Roztańczone postacie, swobodna kreska i kolor niebieski w różnych tonacjach nieba nad...
Pasje
Tamara Łempicka - malarka luksusu i skandalu -Tamara Łempicka stworzyła styl, który stał się symbolem epoki art déco i do dziś fascynuje kolekcjonerów na całym...
Mają piękne liście i lubią cień. Te byliny szybko robią efekt w ogrodzie -Zacienione części ogrodu często wyglądają mało atrakcyjnie. Dlatego warto posadzić tam...
Szarpana karkówka w musztardowej marynacie -Majówka ma w polskim kalendarzu miejsce królewskie, swój niepowtarzalny rytm i zestaw rytuałów, za którymi tęsknimy...
Burger z czosnkowo-serową nutą -Wiosna sprawia, że coraz chętniej jemy na tarasie, balkonie lub w plenerze. Warto zatem spakować Sos Czosnkowy Kielecki Food...
Nowy numer
kup ten numer Wydanie papierowe
kup ten numer Wydanie cyfrowe
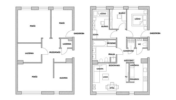
Chciałbym przebudować swoje mieszkanie (85m2) w taki sposób, by wygospodarować miejsce na gabinet. W łazience powinny się znaleźć wanna, prysznic, sedes, bidet oraz 2 umywalki, ponadto przydałoby...
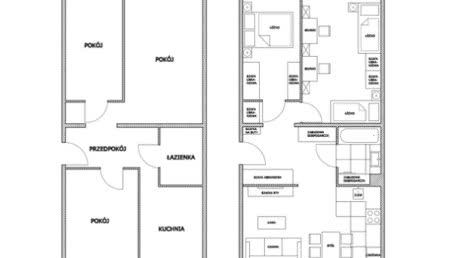
Kupiliśmy 3-pokojowe mieszkanie (55m2), które chcielibyśmy lepiej dostosować do naszych potrzeb. Mamy 2 dzieci (6 i 8 lat), które potrzebują miejsca do nauki. Jeden pokój chcemy przeznaczyć na naszą...
...
83
Następna
x
ABC Budowania
Budowa krok po kroku
Dom Energooszczędny Vademecum
Dom Polski
Jak zbudować dom tańszy niż mieszkanie
Budujemy Dom
Czasopismo budowlane dla budujących dom i wykonawców
Nowoczesne Instalacje
Czas na Wnętrze
Magazyn wnętrzarski pełen inspiracji
Twój Dom Twój Styl
Porady i inspiracje w najmodniejszych stylach
Nowoczesne, stylowe, piękne wnętrza - zasady, porady, inspiracje