Newsletter
Zapisz się do naszej listy mailingowej aby być na bieżąco z nowościami ze świata designu
Wnętrza
Pomieszczenia
Wyposażenie
Style
Inspiracje
Prezentownik 2025: propozycje redakcji na prezenty w stylu modern -Szukasz pomysłu na wyjątkowy, świąteczny prezent? Zobacz nasze...
Prezenty pod choinkę w stylu boho. Prezentownik Czas na Wnętrze 2025 -Pomysły na prezenty, dla tych którzy lubią styl boho. Tu...
Prezentownik 2025: propozycje redakcji na prezenty glamour -Luksusowe przedmioty zamknięte w pełnych przepychu formach budzą...
Niebieski kolor we wnętrzu: meble i dodatki -Roztańczone postacie, swobodna kreska i kolor niebieski w różnych tonacjach nieba nad...
Pasje
Gdy projekt milknie, sztuka mówi najgłośniej. Kulisy aranżacji wystawy „Kwestia kobieca 1550-2025” -Nie każda wystawa potrzebuje scenografii, która przyciąga...
Monachijczycy - artyści, którzy odnaleźli wolność w bawarskiej stolicy -Monachijczycy, czyli polscy artyści, którzy studiowali i tworzyli w Monachium, zdobyli...
„Let There Be Light” - indywidualna wystawa Pawła Jasiewicza w Craftica Gallery -Tytułowe światło rzucają lampy Hani – projekt zainicjowany w 2015 roku podczas...
Wystawy na świecie, które warto obejrzeć w 2026 roku! Artystyczny citybreak -W 2026 roku muzea i galerie Europy przygotowały dla nas wystawy poświęcone jednym z...
Nowy numer
kup ten numer Wydanie papierowe
kup ten numer Wydanie cyfrowe
Mam problem z moim salonem. Od lat stoi tu ogromny barek, duży stół, wypoczynek i ława oraz kominek na gaz, który w ogóle nie jest używany. Proszę o pomoc - chciałabym wprowadzić zmiany i trochę...
Chciałabym zapytać, jak można rozplanować ustawienie sprzętów w moim salonie? Nie bardzo potrafię też dobrać kolorystykę ścian - wiem natomiast, że chciałabym to wnętrze urządzić w stylu...
W swoim nowym mieszkaniu chciałabym zlikwidować drzwi między przedpokojem a salonem oraz połączyć kuchnię z pokojem dziennym (a między nimi zrobić barek). Zależy mi również na wydzieleniu zamykanej...
Kupiliśmy dwa mieszkania - jedno mniejsze, drugie większe, dwupoziomowe. Chcemy je połączyć, by stworzyć jedno duże. Na dole chcielibyśmy mieć sypialnię z przylegającą do niej łazienką oraz kuchnię...
Chciałabym się dowiedzieć, jaki wystrój salonu pasowałby do żyrandola z czarnym kloszem i długimi wiszącymi kryształkami. Miałby on wisieć nad stołem jadalnianym. Nie wiem, jak dobrać dodatki,...
Całe mieszkanie udało nam się jakoś urządzić, jednak nie wiemy jak udekorować okna w salonie połączonym z kuchnią. W kuchni jest okno a tuż obok potrójne okno balkonowe. Czy w oknie kuchennym mogą...
Planujemy wykończyć schody w domu drewnianymi trepami i zrobić balustradę w nowoczesnym stylu. Zastanawiamy się, co położyć na ścianę przy schodach, by nie była taka pusta. Nie może to być zbyt...
Jakiś czas temu zrobiliśmy remont łazienki, jednak z pewnych względów odłożyliśmy na później montaż umywalki. Teraz chcemy dokończyć aranżację, ale nie wiemy, jaka umywalka i bateria będą pasowały...
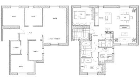
Kupiliśmy 90-metrowy apartament, jednak rozkład pomieszczeń nie odpowiada naszym wymaganiom. Chcemy powiększyć strefę dzienną, by w kuchni znalazło się miejsce na dużą wyspę i stół na 8 osób. W...
W maju z okazji moich 30. urodzin odbieram swoje pierwsze mieszkanie. Bardzo bym chciała zaaranżować je funkcjonalnie, jednak nie mam pomysłu - zwłaszcza na salon z kuchnią. Wydaje mi się...
Za chwile zacznę urządzać swoje pierwsze mieszkanie. Ponieważ jest niewielkie, chciałabym je tak rozplanować, żeby nie sprawiało wrażenia zagraconego a jednocześnie było funkcjonalne. W części...
Zależy nam na takim zagospodarowaniu mieszkania, aby móc uzyskać pokój dziecka, salon oraz wydzielone miejsce na łóżko rodziców.
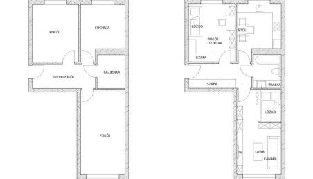
Moje mieszkanie ma nietypowy układ - chciałabym przebudować je tak, aby jak najlepiej wykorzystać przestrzeń, zwłaszcza mały hall i powierzchnię naprzeciwko kuchni. Jestem singlem, sporo pracuję w...
...
82
x
ABC Budowania
Budowa krok po kroku
Dom Energooszczędny Vademecum
Dom Polski
Jak zbudować dom tańszy niż mieszkanie
Budujemy Dom
Czasopismo budowlane dla budujących dom i wykonawców
Nowoczesne Instalacje
Czas na Wnętrze
Magazyn wnętrzarski pełen inspiracji
Twój Dom Twój Styl
Porady i inspiracje w najmodniejszych stylach
Nowoczesne, stylowe, piękne wnętrza - zasady, porady, inspiracje