Najważniejsze zasady projektowania małej kuchni

Za małą kuchnię uznaje się pomieszczenie o powierzchni poniżej 8 m², natomiast tzw. mikrokuchnia to przestrzeń o wielkości zaledwie 3–5 m². Taki metraż wymaga szczególnej precyzji i świadomych decyzji projektowych. Poznajmy zatem cztery zasady jakimi należy się kierować:

  1. Układ zabudowy - zaplanuj rozmieszczenie stref tak, aby codzienne gotowanie i poruszanie się po kuchni było wygodne i płynne.
  2. Pojemne szafki i sprytne przechowywanie - wybieraj meble na wymiar i wykorzystaj każdy centymetr przestrzeni, zwłaszcza przy pomocy systemów obrotowych i wysuwnych, tzw. cargo.
  3. Wygląd - jasne kolory, jednolite faktury i gładkie wykończenia optycznie powiększają wnętrze i nadają mu lekkości.
  4. Dobór urządzeń – postaw na sprzęty kompaktowe, do zabudowy i o minimalistycznej formie, które zapewnią spójny, harmonijny efekt.

Najlepszy układ zabudowy dla małej kuchni

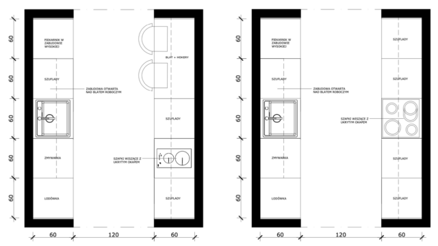
W niewielkich kuchniach najlepiej sprawdzają się układy dwurzędowe (galeria) oraz w kształcie litery U, które pozwalają na wygodny dostęp do wszystkich stref roboczych i zapewniają odpowiednią wielkość blatu. Choć w małej przestrzeni trudno zachować idealne proporcje klasycznego trójkąta roboczego, jego zasadę ergonomicznego planowania warto utrzymać. Lodówka, zlewozmywak i płyta grzewcza powinny być rozmieszczone w logicznej kolejności i w zasięgu kilku kroków, tak aby ruch między nimi był płynny, naturalny i pozbawiony przeszkód.

Dwie wersje rzutu małej kuchni przygotowane przez arch. Martynę Midel.

Rada od architekta

- W małych kuchniach, zwłaszcza w budynkach deweloperskich lub w mieszkaniach z rynku wtórnego, układ zabudowy często determinują istniejące piony kanalizacyjne i wentylacyjne. Warto o tym pamiętać już na etapie planowania, czyli zachować odpowiednie spadki odpływów i, jeśli to możliwe, podłączyć okap bezpośrednio do pionu wentylacyjnego. W przypadku braku takiej możliwości świetnym rozwiązaniem są pochłaniacze z filtrem węglowym – komentuje arch. Martyna Midel.

Jakie szafki sprawdzą się w małej kuchni

W małej przestrzeni najlepiej sprawdza się zabudowa na wymiar w prostym, minimalistycznym stylu:

  1. Bezuchwytowe fronty - gładkie powierzchnie bez wystających uchwytów optycznie powiększają wnętrze i zapewniają swobodę ruchu.
  2. Zabudowa do sufitu - pełne wykorzystanie wysokości pomieszczenia zwiększa przestrzeń do przechowywania, dlatego warto zamówić meble u stolarza.
  3. Systemy oszczędzające miejsce - wysuwane kosze cargo, półki obrotowe, wąskie szafki i ukryte schowki pomagają efektywnie zagospodarować każdy centymetr.

Jak dobrać sprzęty do małej kuchni

W małej kuchni kluczowy jest dobór sprzętów, które pełnią więcej niż jedną funkcję, oraz urządzeń do zabudowy, dzięki którym wnętrze pozostaje uporządkowane
i wizualnie lżejsze:

1. Bateria filtrująca Franke Vital - z filtrem w formie kapsułki umieszczonym w dodatkowej wylewce. 

Franke bateria Vital z filtrem w dodatkowej wylewce.

2. Kompaktowy piekarnik Mythos z funkcją mikrofali lub standardowy model z funkcjami parowymi, umożliwiający pieczenie nawet czterech potraw jednocześnie bez mieszania się ich smaków i zapachów.

Franke piekarnik z kolekcji Mythos, to nawet 4 potrawy pieczone jednocześnie.

3. Zlewozmywak Kanon lub Maris z akcesoriami, takimi jak deska do krojenia czy wkładka ociekowa, pozwala wykonywać wiele czynności w obrębie zlewu, oszczędzając miejsce na blacie.

Franke, zlewozmywak Kanon z akcesoriami zwiększającymi jego funkcjonalność.
Franke, pojemny zlewozmywak Maris zmieści nawet płytę z piekarnika.

4. Lodówka w zabudowie, która staje się integralną częścią mebli i pozostaje wizualnie niewidoczna.

5. Płyta Smart z dwoma polami grzejnymi - idealna dla osób, które gotują sporadycznie i nie potrzebują dużej powierzchni grzewczej.

Franke, płyta z linii Smart z dwoma polami.

6. Okap szafkowy Box Flush, ukryty w zabudowie, pozwala wykorzystać przestrzeń po jego bokach, na przykład na dodatkowe półki lub szafki.

Franke, okap szafkowy Box Flush w modnej matowej czerni.

Kolory w małej kuchni

W małej kuchni najlepiej sprawdzają się naturalne, jasne kolory ziemi, takie jak beże, złamana biel, ciepłe odcienie szarości oraz dekory imitujące jasne drewno. Takie barwy tworzą przytulne i harmonijne tło, a jednocześnie dobrze komponują się z naturalnymi materiałami, między innymi z drewnem, kamieniem i stalą szczotkowaną. Jednolite, matowe lub półmatowe wykończenia sprzyjają zachowaniu wrażenia porządku i wizualnej przestronności.

- Dobrze zaprojektowana mała kuchnia pokazuje, że funkcjonalność nie zależy od metrażu, lecz od pomysłu i jakości zastosowanych rozwiązań. Kluczowy jest przemyślany układ i właściwie dobrane sprzęty. W ofercie Franke znajduje się wiele urządzeń stworzonych z myślą o małych przestrzeniach, tak aby wnieść do nich również naszą filozofię well-living -podsumowuje Katarzyna Niezabitowska-Baj, ekspertka Franke Polska

Więcej informacji na: www.franke.pl