Newsletter
Zapisz się do naszej listy mailingowej aby być na bieżąco z nowościami ze świata designu
Wnętrza
Pomieszczenia
Wyposażenie
Style
Inspiracje
Prezentownik 2025: propozycje redakcji na prezenty w stylu modern -Szukasz pomysłu na wyjątkowy, świąteczny prezent? Zobacz nasze...
Prezenty pod choinkę w stylu boho. Prezentownik Czas na Wnętrze 2025 -Pomysły na prezenty, dla tych którzy lubią styl boho. Tu...
Prezentownik 2025: propozycje redakcji na prezenty glamour -Luksusowe przedmioty zamknięte w pełnych przepychu formach budzą...
Niebieski kolor we wnętrzu: meble i dodatki -Roztańczone postacie, swobodna kreska i kolor niebieski w różnych tonacjach nieba nad...
Pasje
Tamara Łempicka - malarka luksusu i skandalu -Tamara Łempicka stworzyła styl, który stał się symbolem epoki art déco i do dziś fascynuje kolekcjonerów na całym...
Mają piękne liście i lubią cień. Te byliny szybko robią efekt w ogrodzie -Zacienione części ogrodu często wyglądają mało atrakcyjnie. Dlatego warto posadzić tam...
Szarpana karkówka w musztardowej marynacie -Majówka ma w polskim kalendarzu miejsce królewskie, swój niepowtarzalny rytm i zestaw rytuałów, za którymi tęsknimy...
Burger z czosnkowo-serową nutą -Wiosna sprawia, że coraz chętniej jemy na tarasie, balkonie lub w plenerze. Warto zatem spakować Sos Czosnkowy Kielecki Food...
Nowy numer
kup ten numer Wydanie papierowe
kup ten numer Wydanie cyfrowe
Czy jest możliwość wydzielenia małej sypialni w mojej kawalerce? Chciałabym, żeby zmieściło się w niej łóżko 200 x 140 cm oraz szafa, sofa 2-osobowa, fotel, TV, stolik kawowy. Proszę o poradę.
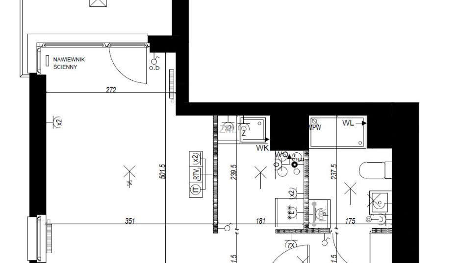
Proszę o poradę w rozmieszczeniu kabiny prysznicowej, umywalki, sedesu, pralki. Pion znajduje się w prawym górnym rogu, grzejnik w linii drzwi po lewej stronie.
Proszę o pomoc w aranżacji salonu - chciałabym umieścić w nim duży regał na książki i oprócz telewizora wstawić komputer stacjonarny. Marzę o narożniku lub sofie z dodatkowym fotelem do czytania....
Nie mam pomysłu na aranżację salonu a chciałabym, aby znalazły się w nim: sofa, stół na 4 krzesła, miejsce na TV i biurko do pracy. Opcjonalnie wyspa jeśli będzie na nią miejsce. Wszystkie okna mają...
Proszę o poradę, jak zaaranżować salon z aneksem kuchennym, aby kuchnia była funkcjonalna, ale jednocześnie niezbyt duża w stosunku do strefy dziennej.
Czy jest możliwość wydzielenia małej sypialni w naszym salonie? Potrzebujemy łóżka i szafki nocnej, a w części dziennej pomieszczenia: kanapy, stołu z krzesłami, TV, stolik kawowego. Prosimy o...
Zakupiłam niedawno kawalerkę. Zastanawiam się czy jest możliwość aby w takiej przestrzeni "wcisnąć" sypialnię i urządzić fajny, spójny salon. Byłabym wdzięczna za sugestie.
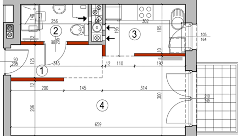
Nasze mieszkanie jest bardzo małe, ma 36,59 m2. Największym problemem jest salon z aneksem kuchennym - zastanawiamy się nad jego funkcjonalnym urządzeniem. Czy na podstawie projektu mogliby Państwo...
Niedawno odświeżyłam starą kuchnię. Wymieniłam fronty i blat oraz płożyłam panele na stare płytki podłogowe. Nie mam pomysłu na pustą ścianę po lewej stronie. Jest to to duży, niezagospodarowany...
Proszę o poradę w sprawie podziału pomieszczenia na salon i aneks kuchenny. Salon będzie pełnił również funkcję sypialni rodziców.
Proszę o poradę, jak urządzić małą łazienkę. Myślę o tym, żeby przenieść grzejnik na ścianę obok sedesu. Zamiast wanny ma być prysznic. Chciałabym też zabudować pralkę np. w ciągu razem z szafką, na...
Proszę o pomoc w aranżacji. Chciałabym powiększyć łazienkę. Planuję także otwarcie kuchni na salon, ale nie wiem jak to dobrze zrobić, żeby zmieścić TV i biokominek. W strefie dziennej chciałabym...
Proszę o pomoc w aranżacji mieszkania na piętrze domu jednorodzinnego. W szczególności salonu z kuchnią. Na pewno chcielibyśmy wyburzyć ściany spiżarni i przenieść ją do zabudowy. Chcemy też...
...
6
x
ABC Budowania
Budowa krok po kroku
Dom Energooszczędny Vademecum
Dom Polski
Jak zbudować dom tańszy niż mieszkanie
Budujemy Dom
Czasopismo budowlane dla budujących dom i wykonawców
Nowoczesne Instalacje
Czas na Wnętrze
Magazyn wnętrzarski pełen inspiracji
Twój Dom Twój Styl
Porady i inspiracje w najmodniejszych stylach
Nowoczesne, stylowe, piękne wnętrza - zasady, porady, inspiracje