Newsletter
Zapisz się do naszej listy mailingowej aby być na bieżąco z nowościami ze świata designu
Wnętrza
Pomieszczenia
Wyposażenie
Style
Inspiracje
Prezentownik 2025: propozycje redakcji na prezenty w stylu modern -Szukasz pomysłu na wyjątkowy, świąteczny prezent? Zobacz nasze...
Prezenty pod choinkę w stylu boho. Prezentownik Czas na Wnętrze 2025 -Pomysły na prezenty, dla tych którzy lubią styl boho. Tu...
Prezentownik 2025: propozycje redakcji na prezenty glamour -Luksusowe przedmioty zamknięte w pełnych przepychu formach budzą...
Niebieski kolor we wnętrzu: meble i dodatki -Roztańczone postacie, swobodna kreska i kolor niebieski w różnych tonacjach nieba nad...
Pasje
Ciasto „Jajo” - wypieki na Wielkanoc -Obok wytrawnych potraw, ciasta pozostają jednym z ważniejszych elementów Wielkanocy. Ten przepis w przewrotny sposób...
Pasta z białej kiełbasy z Majonezem Kieleckim i szczypiorkiem - przepis na pyszną Wielkanoc -Podczas przygotowań do Wielkanocy szczególne znaczenie mają...
Słodko-pikantne jajka faszerowane oraz jajka faszerowane z tuńczykiem -Święta to czas spotkań przy wspólnym stole, ale także kulinarne wyzwanie dla gospodarzy....
Zamiast tulipanów - pelargonie podbijają wielkanocny stół -Pelargonie to kwiaty doniczkowe bliskie ideału. Długo i pięknie kwitnące w wielu kolorach, trwałe,...
Nowy numer
kup ten numer Wydanie papierowe
kup ten numer Wydanie cyfrowe
Czy da się przerobić to mieszkanie na dwa pokoje tak, aby było ono funkcjonalne? Myślałam o zrobieniu drugiego pokoju tam, gdzie jest wolne okno. Sypialnia musiałaby mieć miejsce na sporą szafę,...
Niedawno urodziła się nam córeczka i chcemy wygospodarować pokoik dla niej. Dodatkowo narzekamy na mały i słabo doświetlony salon. Myślałam, żeby salon zrobić z sypialni i kuchni a salon podzielić...
Proszę o pomoc w aranżacji kuchni. Obecne ustawienie jest "domyślne" i wydaje mi się bardzo mało funkcjonalne. Niestety lokalizacja pionów chyba wszystko ogranicza.
Proszę o poradę przy aranżacji salonu z aneksem kuchennym. Nie znajduję odpowiedniego miejsca na sofę ze stolikiem kawowym oraz niewielki stół kuchenny. Zastanawiam się, czy jest inna możliwość niż...
Proszę o pomoc w aranżacji nowej łazienki. Zależy nam na prostokątnej wannie, umywalce z blatem, sedesie podwieszanym. Potrzebujemy dużo schowków. Gdzie umieścić wieszak na ręczniki? Jak optycznie...
Mamy problem z rozmieszczeniem mebli i sprzętów w kuchni i salonie. Chciałabym wyspę lub barek oddzielający salon od kuchni. Na barku lub wyspie sam blat bez zlewu lub płyty grzewczej. Piekarnik...
Proszę o pomoc w aranżacji salonu z aneksem kuchennym. W kuchni chcę mikrofalę, piekarnik, lodówkę, zmywarkę, płytę grzewczą, zlew z min. 1,5 komory). W salonie mały stół (z możliwością rozłożenia),...
Jak rozmieścić meble oraz sprzęt w małej kuchni? Interesuje to płyta gazowa, lodówka, zmywarka, piekarnik i mikrofala w wysokiej zabudowie. Chciałbym jak najwięcej szafek do przechowywania, może być...
Proszę o pomoc w aranżacji salonu, który jednocześnie będzie jadalnią i sypialnią. W części sypialnianej powinno znaleźć się łóżko i szafka 50 x 45 cm, która już mam. W części salonowej planuję...
Zrezygnowałam z górnych szafek w kuchni, które wcześniej miałam w projekcie i teraz okazało się, że jest tam "goło" a mi brakuje pomysłów. Proszę o podpowiedź, jak udekorować ścianę z oknem.
Zależy mi na tym, żeby w salonie zmieściła się duża sofa i stół z 6 krzesłami. Nie mam pomysłu gdzie powiesić TV. Zastanawiam się, czy nie byłoby lepiej zasłonić aneks ścianką? Jak rozplanować...
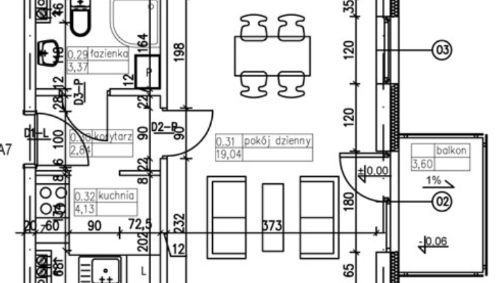
Chcemy wygospodarować dodatkowy pokój dla dziecka, więc planujemy wydzielić w salonie miejsce na aneks kuchenny i duży stół jadalniany. Salon ma niecałe 19 m2 - czy na tak małej powierzchni udałoby...
Proszę o pomoc w aranżacji salonu z kuchnią (ściany dzielącej te dwa pomieszczenia i drzwi nie będzie). Chciałabym jednak troszkę zasłonić kuchnię - może wyspa 120 x 60 cm z małą ścianką o wys. 140...
...
8
x
ABC Budowania
Budowa krok po kroku
Dom Energooszczędny Vademecum
Dom Polski
Jak zbudować dom tańszy niż mieszkanie
Budujemy Dom
Czasopismo budowlane dla budujących dom i wykonawców
Nowoczesne Instalacje
Czas na Wnętrze
Magazyn wnętrzarski pełen inspiracji
Twój Dom Twój Styl
Porady i inspiracje w najmodniejszych stylach
Nowoczesne, stylowe, piękne wnętrza - zasady, porady, inspiracje