Newsletter
Zapisz się do naszej listy mailingowej aby być na bieżąco z nowościami ze świata designu
Wnętrza
Pomieszczenia
Wyposażenie
Style
Inspiracje
Prezentownik 2025: propozycje redakcji na prezenty w stylu modern -Szukasz pomysłu na wyjątkowy, świąteczny prezent? Zobacz nasze...
Prezenty pod choinkę w stylu boho. Prezentownik Czas na Wnętrze 2025 -Pomysły na prezenty, dla tych którzy lubią styl boho. Tu...
Prezentownik 2025: propozycje redakcji na prezenty glamour -Luksusowe przedmioty zamknięte w pełnych przepychu formach budzą...
Niebieski kolor we wnętrzu: meble i dodatki -Roztańczone postacie, swobodna kreska i kolor niebieski w różnych tonacjach nieba nad...
Pasje
Tamara Łempicka - malarka luksusu i skandalu -Tamara Łempicka stworzyła styl, który stał się symbolem epoki art déco i do dziś fascynuje kolekcjonerów na całym...
Mają piękne liście i lubią cień. Te byliny szybko robią efekt w ogrodzie -Zacienione części ogrodu często wyglądają mało atrakcyjnie. Dlatego warto posadzić tam...
Szarpana karkówka w musztardowej marynacie -Majówka ma w polskim kalendarzu miejsce królewskie, swój niepowtarzalny rytm i zestaw rytuałów, za którymi tęsknimy...
Burger z czosnkowo-serową nutą -Wiosna sprawia, że coraz chętniej jemy na tarasie, balkonie lub w plenerze. Warto zatem spakować Sos Czosnkowy Kielecki Food...
Nowy numer
kup ten numer Wydanie papierowe
kup ten numer Wydanie cyfrowe
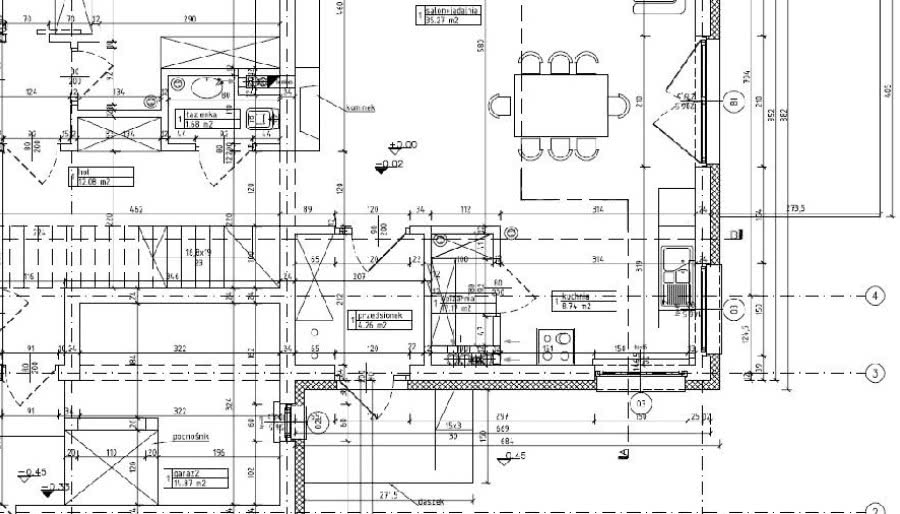
Chcielibyśmy zmienić wejście do domu tak, jak na załączonych rysunkach, aby powiększyć salon z aneksem kuchennym. Zależałoby nam również na spiżarni.
Na ścianie z komputerem ma znaleźć się szafa pod zabudowę, ale nie mam pomysłu jaka. Zastanawiam się, czy nie wymienić karnisza? Czy dodać jakiś kolor w sypialni, żeby ją ożywić, czy pozostawić ją...
Moje pytanie dotyczy przedpokoju - gdzie go wyodrębnić? A może lepiej (lub jeżeli jest to niemożliwe) wydzielić przestrzeń na okrycia wierzchnie i buty? Jak ustawić narożnik, komodę i stół 160 x 100...
Nie mam pomysłu na aranżację długiego i wąskiego salonu. Okno jest do samej podłogi, a balkon jest szklany. Chciałabym, aby salon miał charakter wypoczynkowy, z jak najmniejszą liczbą bibelotów....
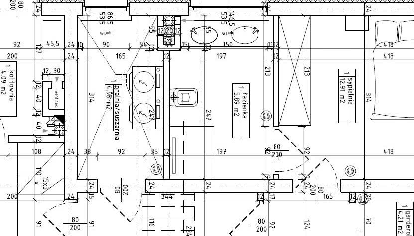
Chciałbym poznać możliwość przerobienia 70 m mieszkania, które obecnie posiada 2 łazienki. Chcielibyśmy trochę powiększyć sypialnię - może z otwarciem na drugi pokój i zrobieniem z niego garderoby...
Wstępnie mamy zaplanowaną aranżację salonu i przedpokoju. Największym problemem jest sypialnia, w której chcielibyśmy zmieścić łóżeczko, komodę na ubranka dziecięce oraz łóżko 160 x 200 cm. Nie...
Chciałbym wyodrębnić w mieszkaniu dodatkową sypialnię. Myślę, że jedynym sensownym wyjściem jest połączenie kuchni z salonem poprzez wyburzenie ścianki pomiędzy nimi, z kolei w pokoju dziennym...
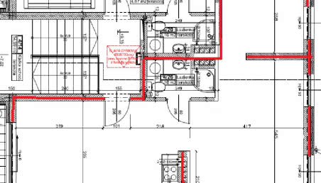
Mam problem z rozplanowaniem ścianek działowych. Na czerwono w projekcie elementy, których nie można ruszyć. Chciałbym w mieszkaniu uzyskać salon + aneks kuchenny, pokój dziecka, łazienkę z wanna i...
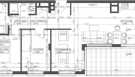
Wraz z żoną chcielibyśmy przebudować mieszkanie, aby uzyskać pomieszczenia zamknięte. Aktualnie wszystkie pokoje są przechodnie. Nie możemy sobie pozwolić na dużą rewolucję, kuchnia i łazienka...
Proszę o pomoc w funkcjonalnej aranżacji łazienki małżeńskiej (prysznic, 2 umywalki, może jest szansa na wannę?). Proszę o propozycję ustawienia i ewentualne komentarze.
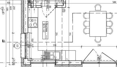
Proszę o pomoc w rozplanowaniu rozkładu kuchni (minimalistyczna). W projekcie są 2 okna - jak funkcjonalnie zaplanować zabudowę meblową?
Planuję przeprowadzić remont salonu - potrzebuje fachowej pomocy w doborze oświetlenia i dodatków. Chcę zmienić kolorystykę na jaśniejsza (może z zielonymi dodatkami) i jedna ścianę zrobić...
Nie mogę poradzić sobie z rozmieszczeniem mebli w salonie, ponieważ jest przejściowy i na każdej ścianie mi coś przeszkadza - to kominek wolno stojący, to okno i grzejnik, jakieś drzwi... Proszę o...
...
73
x
ABC Budowania
Budowa krok po kroku
Dom Energooszczędny Vademecum
Dom Polski
Jak zbudować dom tańszy niż mieszkanie
Budujemy Dom
Czasopismo budowlane dla budujących dom i wykonawców
Nowoczesne Instalacje
Czas na Wnętrze
Magazyn wnętrzarski pełen inspiracji
Twój Dom Twój Styl
Porady i inspiracje w najmodniejszych stylach
Nowoczesne, stylowe, piękne wnętrza - zasady, porady, inspiracje