Newsletter
Zapisz się do naszej listy mailingowej aby być na bieżąco z nowościami ze świata designu
Wnętrza
Pomieszczenia
Wyposażenie
Style
Inspiracje
Prezentownik 2025: propozycje redakcji na prezenty w stylu modern -Szukasz pomysłu na wyjątkowy, świąteczny prezent? Zobacz nasze...
Prezenty pod choinkę w stylu boho. Prezentownik Czas na Wnętrze 2025 -Pomysły na prezenty, dla tych którzy lubią styl boho. Tu...
Prezentownik 2025: propozycje redakcji na prezenty glamour -Luksusowe przedmioty zamknięte w pełnych przepychu formach budzą...
Niebieski kolor we wnętrzu: meble i dodatki -Roztańczone postacie, swobodna kreska i kolor niebieski w różnych tonacjach nieba nad...
Pasje
Król kiczu, który podbił świat sztuki! Jeff Koons zrewolucjonizował pojęcie rzeźby -Błyszczące balonowe psy, rekordowe ceny na aukcjach i nieustanne...
Pięć lat Together for Bees - jubileusz, sztuka i premiera wyjątkowego plakatu w MOCAK Bookstore -Tegoroczna, jubileuszowa edycja Wielkiej Wystawy Pszczół była...
Tunel foliowy przez cały sezon - jak dbać o wietrzenie, podlewanie i ochronę roślin? -Aby tunel foliowy stał się oazą obfitych plonów, niezbędna jest jego...
Roślinne dekoracje jak z bajki - te pomysły zmienią twoje święta -Świąteczne dekoracje roślinne to nie tylko piękna tradycja, ale także sposób na wprowadzenie...
Nowy numer
kup ten numer Wydanie papierowe
kup ten numer Wydanie cyfrowe
Proszę o poradę czy można z tego pokoju wydzielić garderobę i w którym miejscu? Jeśli nie można wydzielić garderoby - gdzie ustawić dużą szafę? Salon pełni również funkcję sypialni (posiadane łóżko...
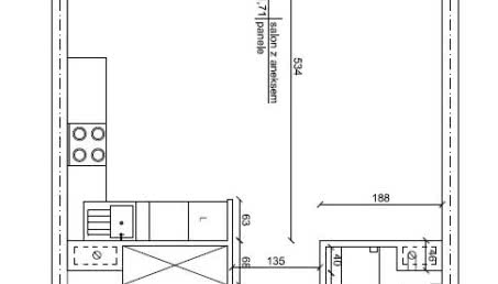
Proszę o pomoc w aranżacji salonu z otwartą kuchnią. Wszystkie okna są od podłogi aż do sufitu. Jak funkcjonalnie ustawić sprzęty w kuchni (piekarnik w słupku, płyta indukcyjna, zmywarka, lodówka)...
Zależy nam na miejscach do przechowywania ubrań, wygospodarowaniu miejsca na pralkę i suszarkę w ramach pomieszczenia gospodarczego. Marzy mi się także funkcjonalna kuchnia i wanna w łazience....
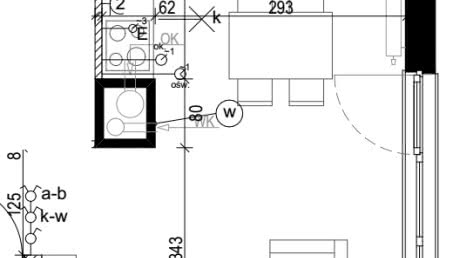
Proszę o podpowiedzieć, jak urządzić przechodnią kuchnię. Chciałabym, żeby było jak najwięcej szafek i stół, przy którym zmieszczą się 4 osoby.
Mam problem z aranżacją salonu z aneksem, chodzi głównie o wydzielenie kuchni (np. poprzez wyspę czy półwysep) oraz miejsce na tv. Chce, żeby w kuchni znalazła się m.in. zmywarka, piekarnik w...
Zależy mi na biokominku wiszącym na ścianie. Chciałbym też, aby w salonie znajdował się stół rozsuwany oraz sofa. W aneksie kuchennym piekarnik oraz zmywarka zabudowana, lodówka wolno stojąca....
Chciałabym urządzić sypialnię, w której zamierzam wydzielić oddzielną, zamykaną garderobę i miejsce do pracy (biurko, pojemne półki ścienne lub szafka). Mam już łóżko o wymiarach 150 x 204 cm, nie...
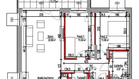
Chciałabym przenieść kuchnię do salonu. Zależy mi na wygospodarowaniu dodatkowego pokoju. Czy jest to możliwe w tym ustawieniu? Czy salon nie będzie zbyt mały? Jak ustawić meble (chętnie z wyspą)?...
Proszę o poradę jak urządzić ten pokój. Zależy mi, aby stała tu kanapa rozkładana, szafa, stół (90 cm szerokości) oraz coś na telewizor i książki (np. komoda / stolik na telewizor i witryna).
Nie wiem jak ustawić meble w salonie i aneksie kuchennym. Bardzo proszę o pomoc. Przez środek przebiega ściana działowa, ale jej nie będzie.
Proszę o pomoc w urządzeniu łazienki. Jest to bardzo małe pomieszczenie. Jak umieścić sprzęty (pralka, umywalka, sedes, prysznic lub wanna), aby nie przytłoczyć pomieszczenia?
Potrzebujemy rozplanować kuchnię, która ze względu na wcięcie przy kominie, wejścia z dwóch stron oraz małe rozmiary sprawia, że nie mamy na nią pomysłu. Kuchnia musi pomieścić oprócz szafek,...
Proszę o pomoc w zaprojektowaniu salonu z kuchnią w mieszkaniu w stanie deweloperskim.
...
10
x
ABC Budowania
Budowa krok po kroku
Dom Energooszczędny Vademecum
Dom Polski
Jak zbudować dom tańszy niż mieszkanie
Budujemy Dom
Czasopismo budowlane dla budujących dom i wykonawców
Nowoczesne Instalacje
Czas na Wnętrze
Magazyn wnętrzarski pełen inspiracji
Twój Dom Twój Styl
Porady i inspiracje w najmodniejszych stylach
Nowoczesne, stylowe, piękne wnętrza - zasady, porady, inspiracje