Newsletter
Zapisz się do naszej listy mailingowej aby być na bieżąco z nowościami ze świata designu
Wnętrza
Pomieszczenia
Wyposażenie
Style
Inspiracje
Prezentownik 2025: propozycje redakcji na prezenty w stylu modern -Szukasz pomysłu na wyjątkowy, świąteczny prezent? Zobacz nasze...
Prezenty pod choinkę w stylu boho. Prezentownik Czas na Wnętrze 2025 -Pomysły na prezenty, dla tych którzy lubią styl boho. Tu...
Prezentownik 2025: propozycje redakcji na prezenty glamour -Luksusowe przedmioty zamknięte w pełnych przepychu formach budzą...
Niebieski kolor we wnętrzu: meble i dodatki -Roztańczone postacie, swobodna kreska i kolor niebieski w różnych tonacjach nieba nad...
Pasje
Tamara Łempicka - malarka luksusu i skandalu -Tamara Łempicka stworzyła styl, który stał się symbolem epoki art déco i do dziś fascynuje kolekcjonerów na całym...
Mają piękne liście i lubią cień. Te byliny szybko robią efekt w ogrodzie -Zacienione części ogrodu często wyglądają mało atrakcyjnie. Dlatego warto posadzić tam...
Szarpana karkówka w musztardowej marynacie -Majówka ma w polskim kalendarzu miejsce królewskie, swój niepowtarzalny rytm i zestaw rytuałów, za którymi tęsknimy...
Burger z czosnkowo-serową nutą -Wiosna sprawia, że coraz chętniej jemy na tarasie, balkonie lub w plenerze. Warto zatem spakować Sos Czosnkowy Kielecki Food...
Nowy numer
kup ten numer Wydanie papierowe
kup ten numer Wydanie cyfrowe
Jedną ścianę w sypialni mam pomalowaną w pionowe pasy. Chcę coś powiesić na tej ścianie. Myślałam o obrazie lub metalowym zegarze. A może najlepszym wyjściem będzie nie wieszanie tam niczego? Proszę...
Proszę o poradę odnośnie metamorfozy salonu, którego wymiary to 8 x 5 m.
Chciałabym prosić o pomoc w innym niż dotychczasowe rozplanowaniu mieszkania, w którym największym problemem jest ogromny komin zabierający miejsce w aneksie kuchennym. Ukośna ściana w jednej z...
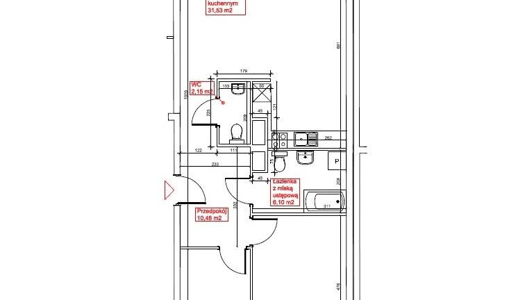
Robię remont w mieszkaniu i nie mam pojęcia, jak zaprojektować kuchnię - może Państwo coś doradzą?
Chcielibyśmy w naszym mieszkaniu wydzielić dodatkowy pokój dla dziecka - myśleliśmy o dostawieniu ściany w salonie i tam utworzeniu naszej "nowej" sypialni. Mamy jednak wątpliwości, czy nie...
W moim niewielkim mieszkaniu mam duży problem. Urządzając je kilka lat temu wpadliśmy z mężem na pomysł, aby wejście z przedpokoju do pokoju dziennego było bez drzwi. Jednak teraz widzę, że nie było...
Chciałabym wydzielić miejsce na sypialnię w moim mieszkaniu. Niestety nie ma możliwości przeniesienia kuchni. Proszę o poradę, w jaki sposób mogłabym to rozplanować.
Wszystkie ściany włącznie z sufitem wyłożone są nielakierowaną boazerią drewnianą. Chciałabym ją zostawić na ścianach i przemalować, a tę ze sufitu ściągnąć. Drzwi zostały niedawno wymienione i nie...
Proszę o poradę, jak urządzić pokój dla syna, 19 - letniego studenta. Chciałby rozkładaną sofę, najlepiej z pojemnikiem na pościel, niewielkie biurko, fotel lub krzesło. Będę wdzięczna za sugestie w...
Proszę o pomoc w urządzeniu mieszkania. Mamy 8 letnią córkę i 4 letniego syna, a niedługo przywitamy na świecie trzecie dziecko. Chcielibyśmy zrezygnować z WC na rzecz garderoby, w której będzie...
Salon jest jeszcze nieurządzony, wszystkie meble są tymczasowe do wymiany, ale dopiero za jakiś czas (styl będzie raczej klasyczny). Kupiliśmy już jednak żyrandol, który widać na suficie, ale nie...
Potrzebuję pomocy w rozmieszczeniu mebli w kuchni. Na co dzień będą tu jadły 4 osoby. Chcielibyśmy również, żeby znalazło się miejsce na zmywarkę o szer. 60 cm.
Mam piętrowy wąski dom, w którym chciałabym zrobić 2 - poziomowe mieszkanie. Jest możliwość podłączenia wszelkiej instalacji oraz zrobienia w środku schodów spiralnych. Ponieważ pokoje są dosyć...
...
63
x
ABC Budowania
Budowa krok po kroku
Dom Energooszczędny Vademecum
Dom Polski
Jak zbudować dom tańszy niż mieszkanie
Budujemy Dom
Czasopismo budowlane dla budujących dom i wykonawców
Nowoczesne Instalacje
Czas na Wnętrze
Magazyn wnętrzarski pełen inspiracji
Twój Dom Twój Styl
Porady i inspiracje w najmodniejszych stylach
Nowoczesne, stylowe, piękne wnętrza - zasady, porady, inspiracje