Newsletter
Zapisz się do naszej listy mailingowej aby być na bieżąco z nowościami ze świata designu
Wnętrza
Pomieszczenia
Wyposażenie
Style
Inspiracje
Prezentownik 2025: propozycje redakcji na prezenty w stylu modern -Szukasz pomysłu na wyjątkowy, świąteczny prezent? Zobacz nasze...
Prezenty pod choinkę w stylu boho. Prezentownik Czas na Wnętrze 2025 -Pomysły na prezenty, dla tych którzy lubią styl boho. Tu...
Prezentownik 2025: propozycje redakcji na prezenty glamour -Luksusowe przedmioty zamknięte w pełnych przepychu formach budzą...
Niebieski kolor we wnętrzu: meble i dodatki -Roztańczone postacie, swobodna kreska i kolor niebieski w różnych tonacjach nieba nad...
Pasje
Tamara Łempicka - malarka luksusu i skandalu -Tamara Łempicka stworzyła styl, który stał się symbolem epoki art déco i do dziś fascynuje kolekcjonerów na całym...
Mają piękne liście i lubią cień. Te byliny szybko robią efekt w ogrodzie -Zacienione części ogrodu często wyglądają mało atrakcyjnie. Dlatego warto posadzić tam...
Szarpana karkówka w musztardowej marynacie -Majówka ma w polskim kalendarzu miejsce królewskie, swój niepowtarzalny rytm i zestaw rytuałów, za którymi tęsknimy...
Burger z czosnkowo-serową nutą -Wiosna sprawia, że coraz chętniej jemy na tarasie, balkonie lub w plenerze. Warto zatem spakować Sos Czosnkowy Kielecki Food...
Nowy numer
kup ten numer Wydanie papierowe
kup ten numer Wydanie cyfrowe
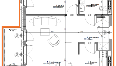
Mamy dwójkę małych dzieci i zależy nam, by miały własne pokoje. Czy da się to mieszkanie zaaranżować w taki sposób, by było bardziej funkcjonalne i odpowiadało potrzebom 4 - osobowej rodziny?
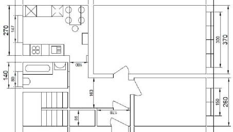
Proszę o poradę, jak mogłabym zmienić rozkład pomieszczeń, aby uzyskać dodatkowy pokój dla dziecka. Myślałam o wydzieleniu go z części salonu. Dodam, że dom dopiero będzie w budowie, a ponieważ...
Proszę o pomoc w zaaranżowaniu pokoju do pracy / pokoju gościnnego. Mają się tam znaleźć: stanowisko pracy z laptopem, drugie z maszyną do szycia na stałe, szafa ubraniowa, rozkładana sofa, miejsce...
Przed rozpoczęciem budowy domu chcę zaplanować rozmieszczenie sprzętu kuchennego: lodówko - zamrażarki, zmywarki, piekarnika, mikrofalówki, zlewu oraz w dużej łazience: wanny, prysznica, pralki i...
Mam dylemat jak poustawiać meble w pokoju dziecka. Kupiliśmy używany komplet, który jest właśnie malowany na biało (szafa w całości, czerwone fronty w pozostałych meblach zostają). Biurko zostanie...
Proszę o pomoc w aranżacji łazienki. Chcę, żeby znalazła się w niej pralka, suszarka, sedes podwieszany, kabina prysznicowa, szafka na ręczniki i pojemnik na bieliznę. Łazienkę chciałabym mieć w...
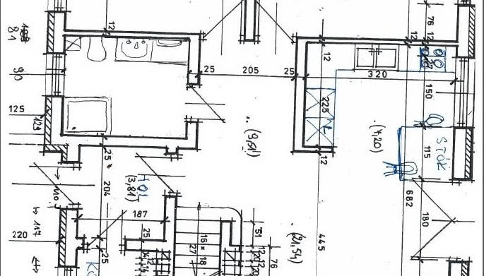
Chciałabym zamiast osobnego WC zrobić garderobę - zastanawiam się, jaką szerokość powinna mieć garderoba, żeby po obu jej stronach mieć szafy. Biorąc pod uwagę nośne ściany - zaznaczone w projekcie...
Chciałabym prosić o pomoc w ogólnym zaaranżowaniu naszego mieszkania. Docelowo będziemy potrzebowali dwóch sypialni.
Mam do dyspozycji pokój o wymiarach 416 x 550 cm. Chcę zmieścić w nim łózko 170 x 221 cm, biurko 70 x 160 cm, dwie witryny po 85 cm szer. każda, komodę 120 cm szer., szafkę pod tv 170 cm szer. i...
Proszę o poradę, jakie kolory nadać poszczególnym pomieszczeniom, aby całość ładnie się komponowała. Lubię kolory wypłowiałe, stonowane, rozmyte typu ceglany, budyniowy, piaskowy, miętowy. Ogólnie...
Nie wiem, jak urządzić funkcjonalne mieszkanie na piętrze. W salonie chcemy ustawić narożnik o wym. 275 x 200 cm, stół z krzesłami (używany odświętnie - kuchnia na parterze), kredens, TV, komodę i...
Mamy problem z zaprojektowaniem pomieszczeń w budynku. Chcemy otwartą kuchnię z salonem i jadalnią, łazienkę 2 lub 3 sypialnie. Myśleliśmy też o werandzie w obrysie budynku. Ściana znajdująca się w...
W naszym mieszkaniu trwa remont, ale wymiana drzwi będzie musiała poczekać. Stare drzwi są nieładne i mocno kontrastują z nowym wnętrzem. Jak mogę odnowić stare drzwi jak najmniejszym kosztem? Chcę...
...
61
x
ABC Budowania
Budowa krok po kroku
Dom Energooszczędny Vademecum
Dom Polski
Jak zbudować dom tańszy niż mieszkanie
Budujemy Dom
Czasopismo budowlane dla budujących dom i wykonawców
Nowoczesne Instalacje
Czas na Wnętrze
Magazyn wnętrzarski pełen inspiracji
Twój Dom Twój Styl
Porady i inspiracje w najmodniejszych stylach
Nowoczesne, stylowe, piękne wnętrza - zasady, porady, inspiracje