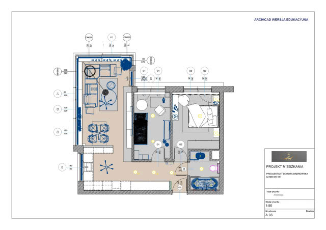
W najnowszej edycji prestiżowego konkursu Creator na najlepszy projekt przestrzeni mieszkalnej, pierwsze miejsce zajęła Dorota Dąbrowska, talent z Warszawy, która zaskoczyła jury swoim innowacyjnym podejściem do aranżacji wnętrz. Jej projekt, realizowany na warszawskim Ursynowie, to prawdziwe dzieło sztuki, które łączy w sobie funkcjonalność, styl i osobiste pasje mieszkańców.
Elegancja spotyka funkcjonalność: odkryj sekrety wyjątkowego mieszkania
Mieszkanie, zaprojektowane dla Małgosi, Leszka oraz ich 12-letniego syna Stasia, jest kwintesencją nowoczesnego designu, w którym dominują naturalne materiały i eleganckie detale. Drewniane elementy, takie jak półki czy ramy łóżek, nadają wnętrzu ciepło i przytulność, podczas gdy skórzane fotele i stonowane, jasne kolory z ciemnymi akcentami tworzą atmosferę luksusu i elegancji.
Pokój nastolatka, który każdy chciałby mieć: inspiracja piłką nożną
Jednym z najbardziej uderzających elementów tego projektu jest pokój dla Stasia, zaprojektowany z myślą o jego pasji do piłki nożnej. To przestrzeń, która łączy funkcjonalność z inspiracją, tworząc idealne miejsce do nauki, odpoczynku i rozwijania sportowych zainteresowań.
Rewolucyjne połączenie kuchni z salonem: sekret rodzinnej integracji
Kluczowym aspektem projektu Doroty Dąbrowskiej jest integracja przestrzeni życiowej. Kuchnia, salon i jadalnia zostały połączone w jedną, otwartą przestrzeń, co sprzyja wspólnemu spędzaniu czasu przez rodzinę. Jest to miejsce, gdzie można wspólnie gotować, jeść, oglądać filmy czy po prostu spędzać czas razem, co jest szczególnie ważne w dzisiejszych, zabieganych czasach.
Zostań projektantem wnętrz: twoja szansa na sukces z Creator
Projekt Doroty Dąbrowskiej został doceniony nie tylko za jego estetykę, ale także za funkcjonalność i ponadczasowość. To mieszkanie, które nie tylko wygląda pięknie, ale jest również przemyślanie zaprojektowane, aby służyć rodzinie przez wiele lat. Jeśli marzysz o stworzeniu równie wyjątkowego wnętrza, firma Creator oferuje kursy projektowania, które mogą być pierwszym krokiem w kierunku realizacji Twoich marzeń. Szkolenia prowadzone są przez doświadczonych profesjonalistów i dostępne są zarówno stacjonarnie w różnych miastach Polski, jak i online. Po ukończeniu kursu uczestnicy otrzymują certyfikat, który jest potwierdzeniem ich umiejętności i wiedzy.
Odkryj więcej: twoja przyszłość w projektowaniu wnętrz zaczyna się tutaj
Więcej informacji na temat kursów oraz projektu Doroty Dąbrowskiej znajdziesz na stronach www.creator.net.pl oraz www.creatorkursy.pl. To doskonała okazja, aby rozpocząć swoją przygodę z projektowaniem wnętrz i stworzyć coś wyjątkowego dla siebie i swoich bliskich.



