Newsletter
Zapisz się do naszej listy mailingowej aby być na bieżąco z nowościami ze świata designu
Wnętrza
Pomieszczenia
Wyposażenie
Style
Inspiracje
Prezentownik 2025: propozycje redakcji na prezenty w stylu modern -Szukasz pomysłu na wyjątkowy, świąteczny prezent? Zobacz nasze...
Prezenty pod choinkę w stylu boho. Prezentownik Czas na Wnętrze 2025 -Pomysły na prezenty, dla tych którzy lubią styl boho. Tu...
Prezentownik 2025: propozycje redakcji na prezenty glamour -Luksusowe przedmioty zamknięte w pełnych przepychu formach budzą...
Niebieski kolor we wnętrzu: meble i dodatki -Roztańczone postacie, swobodna kreska i kolor niebieski w różnych tonacjach nieba nad...
Pasje
Gdy projekt milknie, sztuka mówi najgłośniej. Kulisy aranżacji wystawy „Kwestia kobieca 1550-2025” -Nie każda wystawa potrzebuje scenografii, która przyciąga...
Monachijczycy - artyści, którzy odnaleźli wolność w bawarskiej stolicy -Monachijczycy, czyli polscy artyści, którzy studiowali i tworzyli w Monachium, zdobyli...
„Let There Be Light” - indywidualna wystawa Pawła Jasiewicza w Craftica Gallery -Tytułowe światło rzucają lampy Hani – projekt zainicjowany w 2015 roku podczas...
Wystawy na świecie, które warto obejrzeć w 2026 roku! Artystyczny citybreak -W 2026 roku muzea i galerie Europy przygotowały dla nas wystawy poświęcone jednym z...
Nowy numer
kup ten numer Wydanie papierowe
kup ten numer Wydanie cyfrowe
Moje 46 m mieszkanie dopiero będzie budowane, mogę więc zmienić układ ścian działowych. W przyszłości będę w nim mieszkać wraz z synem. Dla dziecka przeznaczę mniejszy pokój. Biorę tez pod uwagę...
Proszę o poradę w zakresie urządzenia mieszkania. Podobają mi się wnętrza industrialne, minimalistyczne, ale nie przesadnie surowe. Interesują mnie elementy wykończenia z betonu, drewna oraz jasne...
Chciałabym skorzystać z porady eksperta odnośnie rozplanowania naszego nowego mieszkania. Na razie jesteśmy we dwoje, w przyszłości planujemy powiększenie rodziny, więc jeden z pokoi kiedyś będzie...
Prosimy o propozycję przebudowy naszego mieszkania - chcemy uzyskać dodatkowy pokój, który na razie będzie spełniał funkcję gabinetu, a z czasem pokoju dziecięcego. Chcemy też powiększyć łazienkę...
Planujemy powiększyć naszą 2-osobową rodzinę, więc będziemy musieli przeorganizować mieszkanie. Pracuję w domu - obecnie mam gabinet w najmniejszym z pokoi, który stanie się pokojem dziecięcym....
Planuję wynająć jeden z pokoi w mieszkaniu dwóm studentom. Proszę o radę, jak go urządzić, by znalazło się w nim miejsce na 2 rozkładane kanapy, 2 biurka i jakieś szafki, półki. Proszę o propozycje...
Proszę o poradę dotyczącą aranżacji salonu połączonego z kuchnią. Chcę zrobić wyspę ze stołkami barowymi, ale bez płyty grzewczej, czy zlewu. W kuchni duża lodówka, w salonie stół na 6 krzeseł, duża...
Proszę o pomoc w rozplanowaniu łazienki. Nie potrzebujemy bidetu, sedes - jeśli się nie zmieści, nie jest konieczny (jest w drugiej łazience). Chcemy mieć wannę i prysznic oddzielnie - prysznic...
Jesteśmy młodym małżeństwem i rodzicami dwuletniego synka. Niebawem staniemy się właścicielami naszego pierwszego mieszkania. Prosimy o pomoc w jego aranżacji. Chcielibyśmy uzyskać miejsce na szafy...
Jestem na etapie planowania salonu z aneksem kuchennym. Na podłogę chcę położyć płytki Paradyż Masto Grys półpoler oraz cegiełkę pomalowaną na biało na ścianie telewizyjnej. Mam zakupioną kanapę...
Chciałbym się poradzić, jaki kolor ścian wybrać do sypialni / salonu, gdzie na całej ścianie za łóżkiem będzie czarno-biała fototapeta New York Brooklyn Bridge?
Chciałabym umeblować i udekorować salon ze skosami. Pokój ma prawie 80 m2 (8,3 x 7,4 m). Na ścianach oraz podłodze znajdują się belki, które chciałabym zostawić. Poza meblami wypoczynkowymi i rtv...
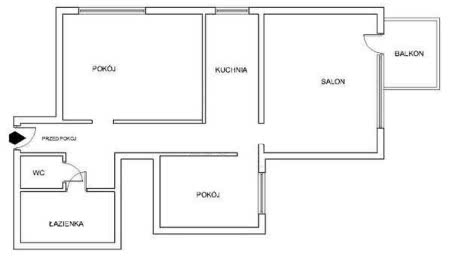
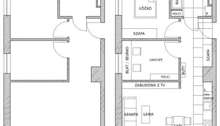
Rozważam zakup mieszkania i zastanawiam się, czy można w jakiś sposób poprawić jego funkcjonalność. Proszę o poradę.
...
80
x
ABC Budowania
Budowa krok po kroku
Dom Energooszczędny Vademecum
Dom Polski
Jak zbudować dom tańszy niż mieszkanie
Budujemy Dom
Czasopismo budowlane dla budujących dom i wykonawców
Nowoczesne Instalacje
Czas na Wnętrze
Magazyn wnętrzarski pełen inspiracji
Twój Dom Twój Styl
Porady i inspiracje w najmodniejszych stylach
Nowoczesne, stylowe, piękne wnętrza - zasady, porady, inspiracje