Jak urządzić część wypoczynkową w salonie 55 latków?
Porada projektanta:
Pani Beato,
zaproponowałam 3 różne układy funkcjonalne i postaram się każdy po krótce przeanalizować.
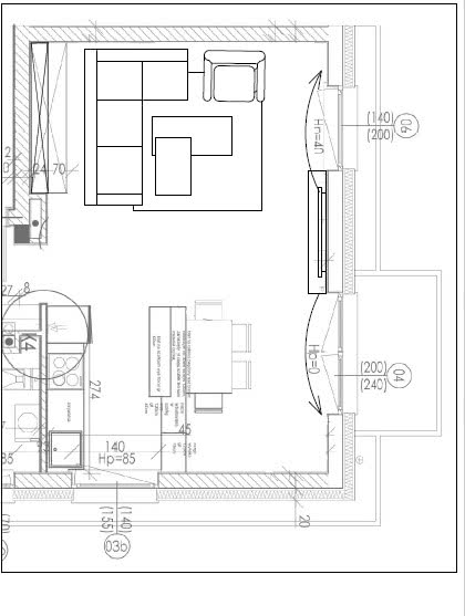
WARIANT 1
+ duża strefa wypoczynkowa do dowolnego zaaranżowania (narożnik + dwa fotele lub wypoczynek w kształcie "U" lub dwie sofy)
+ możliwość zlicowania szafki RTV z kominem (brak wystających narożników)
+ brak zmian w układzie mieszkania = brak dodatkowych kosztów
+ kanapa i fotel zasłaniają grzejniki, które obecnie są w niefortunnym miejscu na wprost wejścia do salonu
- TV na przeciwko okien (może przeszkadzać odbijające się światło, więc trzeba będzie zainwestować w dobre rolety
- TV dość daleko kanapy, więc będzie musiał mieć dużą przekątną ekranu
- kolizja kanapy z oknem - sugerowałabym zastosowania mebla z niskim oparciem, ale i tak trzeba będzie ją odsuwać przy np. myciu okien
- kanapa tyłem do okna
+/- TV widoczne z jadalni - tu zależnie od Państwa preferencji
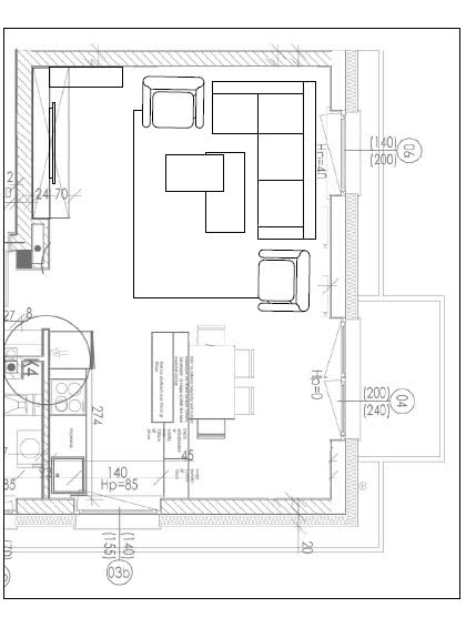
WARIANT 2 z niską (ok. 130cm) ścianką pomiędzy jadalnią a salonem oraz przesunięciem stołu
+ brak kolizji z oknami, grzejnikami
+ mniejsza odległość kanapy od TV
+ salon zwrócony w stronę jadalni, pełnią jedną całość
- konieczność zbudowania ścianki, przeróbek instalacyjnych = dodatkowe koszta
- pomniejszenie jadalni
- ciąg komunikacyjny pomiędzy kanapą, a TV
- grzejniki widoczne od wejścia do salonu (ewentualna ich zabudowa)
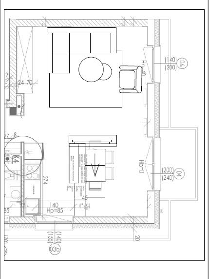
WARIANT 3 ze zmianą lokalizacji obu grzejników
+ kanapa przodem do okien
+ duża strefa wypoczynkowa do dowolnego zaaranżowania (narożnik + dwa fotele lub wypoczynek w kształcie "U" lub dwie sofy)
+ nie ingerowanie w przestrzeń jadalni
- konieczność przeniesienia grzejników = dodatkowe koszta
- TV dość daleko kanapy, więc będzie musiał mieć dużą przekątną ekranu
Decyzję pozostawiam Państwu, ale proszę przede wszystkim pomyśleć w jaki sposób będziecie Państwo salon użytkować. Jeżeli nie oglądacie zbyt często TV, ale często przyjmujecie gości to sugerowałabym wariant 1 lub 3.
Jeżeli jednak jesteście fanami oglądania filmów i zaaranżować mieszkanie w sposób nowoczesny to najlepszy będzie wariant 2.
Jeżeli ma Pani więcej pytań lub chce kontynuować projekt z architektem wnętrz proszę o kontakt sikora.projekty@gmail.com



