Dowolna aranżacja przestrzeni w nowym mieszkaniu - jak tego dokonać?

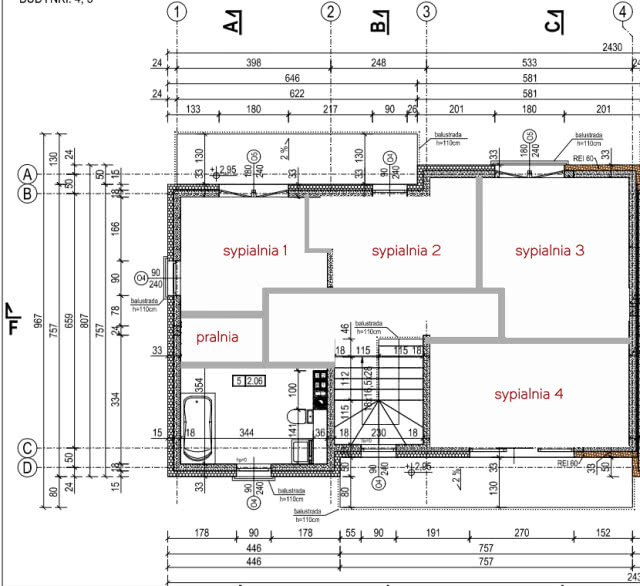
Dzień dobry, kupiliśmy z mężem segment, w którym piętro liczy trzy sypialnie, garderobę i dużą łazienkę. Możemy dokonać zupełnego przearanżowania tej przestrzeni, łącznie z rezygnacją z jednej ze ścian w garderobie (z racji tego, ze to ściana nośna w jednym miejscu będzie musiał się znaleźć słup). Czy według Pani, jeśli zrezygnujemy z garderoby w wyznaczonym miejscu, jest możliwy podział tej przestrzeni na cztery pokoje i wydzielenie niewielkiej pralni przy łazience kosztem zmniejszenia powierzchni pokoju obok? Pozdrawiam, Justyna
Rzut przesłany przez czytelniczkę.

Porada projektanta:

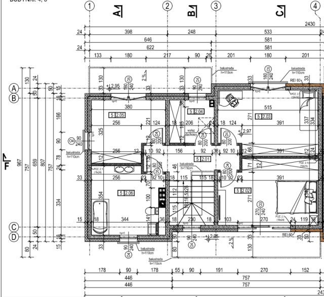
Dzień dobry Pani Justyno, przesyłam proponowany przeze mnie układ. Co prawda pokoje będą wtedy niewielkie, ale przy sprytnym wykorzystaniu wnęk na szafy i dobrym rozplanowaniu funkcjonalnym będzie możliwy taki podział. Co prawda było konieczne zmniejszenie też łazienki, ale uważam, że nie wpłynie to negatywnie na całą aranżację.

Propozycja aranżacji zaproponowana przez architektkę.

Jeżeli ma Pani więcej pytań lub chce kontynuować projekt z moją pomocą proszę o kontakt sikora.projekty@gmail.com