Pomysł na małą przestrzeń biurową
Porada projektanta:
Pani Edyto,
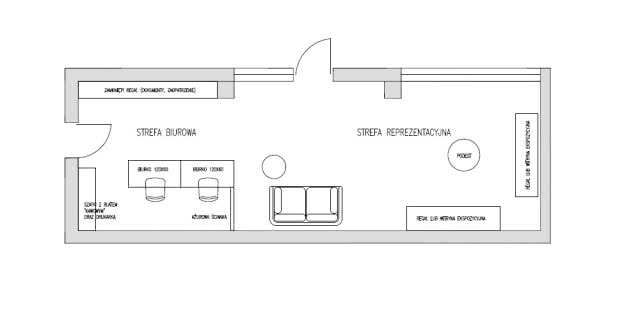
nie znam branży w której pracujecie, ale starałam się stworzyć możliwie uniwersalną i ergonomiczną aranżację. Proponuję przy wejściu do magazynu stworzyć strefę biurową z dwoma biurkami odwróconymi przodem do wejścia i do okien a do tego sporą ilością regałów o różnym przeznaczeniu. Na wprost od drzwi wejściowych umieściłabym wygodną sofę dla klientów i interesantów, a także jako element dekoracyjny.
W strefie reprezentacyjnej przy ścianach można umieścić regały lub witryny ekspozycyjne - wielkość i formę można dostosować do potrzeb. Na środku zaprojektowałam punkt centralny w formie podestu lub standu z wyeksponowanym najważniejszym produktem lub przedmiotem Waszej produkcji. Warto by było też zadbać o jego punktowe oświetlenie.
Nie widziałam tego pomieszczenia, ale takie przestrzenie zawsze dają duże możliwości aranżacyjne i pięknie się komponują z designerskimi meblami i oryginalnymi rozwiązaniami architektonicznymi. Dorzucam nieco inspiracji i pozdrawiam. Jeżeli ma Pani więcej pytań lub chce kontynuować projekt z architektem wnętrz proszę o kontakt sikora.projekty@gmail.com



