Jak urządzić pracownię DIY w swoim domu?
Porada projektanta:
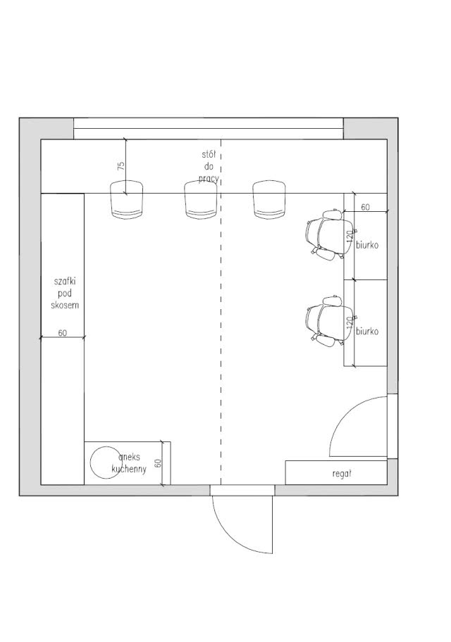
Przesyłam dwa warianty układu. Wybór zależy od ilości pracowników i dokładnych potrzeb dla wygodnej pracy wszystkich osób. Na pewno przestrzeń pod skosem wykorzystałabym na szafkę - magazyn. Albo do wysokości skosu, albo niższą (ok. 90 cm) i wtedy mamy jeszcze długi blat np. na drukarki, ekspozytory czy otwarte półki.
Warto jeszcze przed zastosowaniem danego układu pomyśleć nad doprowadzeniem prądu do miejsc pracy - pod tym względem stół na środku może być nieco kłopotliwy. Na etapie projektu można zaplanować gniazda w podłodze, ale teraz bez sporej ingerencji nie da się ich zrobić i pozostają przedłużacze.
Natomiast co do wystroju w stylu boho to polecam artykuł redakcji. Liczne dodatki oferuje w tym stylu oferuje sklep Boho Swing. Jeśli natomiast chodzi o wystrój ścian, ja często korzystam z tapet z tej strony Ubierz Swoje Ściany, a jeżeli miało by to być coś bardziej klasycznego to polecam producentów Cole & Son, Khroma lub Arte. Dobrze sprawdzą się tutaj tapety z roślinnymi motywami. Całą pracownię można także ozdobić żywymi roślinami np. monsterą, palmą, paprocią.
A może fajnie by było stworzyć wyjątkową fototapetę związaną z marką? Pasujący model lampy to zależnie od wybranego układu. Jeżeli coś dekoracyjnego i przy biurkach znajdzie się oświetlenie do pracy to może:
albo:
A jeżeli miałaby dobrze oświetlić całe pomieszczenie to jakiś spory plafon.



